Paolotto Inviato 11 Ottobre 2024 Condividi Inviato 11 Ottobre 2024 Buongiorno, a vostra esperienza è possibile prevedere la risposta acustica di un locale senza averlo provato prima, si da il caso che sia ormai in dirittura di arrivo con le trattative per un appartamento che prevede una taverna che vorrei adibire a sala di ascolto sono un pò preoccupato perchè vorrei scongiurare i macroproblemi.... Link al commento https://melius.club/topic/21997-previsione-resa-acustica-di-una-stanza/ Condividi su altri siti Altre opzioni di condivisione...
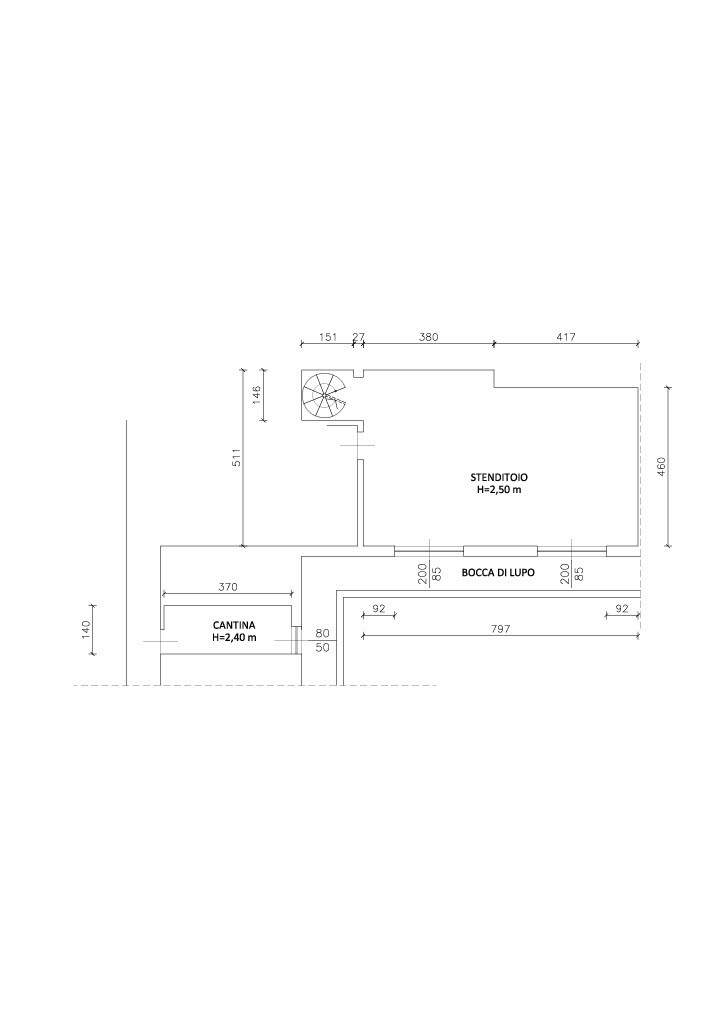
Tronio Inviato 11 Ottobre 2024 Condividi Inviato 11 Ottobre 2024 Da una planimetria puoi ricavare qualche indicazione approssimativa, come ad esempio se rientra nell'area di Bolt https://www.masacoustics.it/dimensioni-ottimali-per-uno-studio-di-registrazione/, ma per avere una previsione più attendibile dovresti sapere ad esempio se le finestre sono ad altezza d'uomo oppure delle feritoie in alto, come verrà arredato, come pensi di trattarlo acusticamente, come intendi disporre l'impianto ecc. 1 Link al commento https://melius.club/topic/21997-previsione-resa-acustica-di-una-stanza/#findComment-1320584 Condividi su altri siti Altre opzioni di condivisione...
Felis Inviato 11 Ottobre 2024 Condividi Inviato 11 Ottobre 2024 Anche REW ha un simulatore incorporato di ambiente. Link al commento https://melius.club/topic/21997-previsione-resa-acustica-di-una-stanza/#findComment-1320633 Condividi su altri siti Altre opzioni di condivisione...
stefano_mbp Inviato 11 Ottobre 2024 Condividi Inviato 11 Ottobre 2024 A mio parere se non hai l’altezza ti manca una dimensione fondamentale Link al commento https://melius.club/topic/21997-previsione-resa-acustica-di-una-stanza/#findComment-1320745 Condividi su altri siti Altre opzioni di condivisione...
davenrk Inviato 11 Ottobre 2024 Condividi Inviato 11 Ottobre 2024 attenzione ai problemi che ti potrebbe creare il vano scale. l'ideale sarebbe chiuderlo con una porta dall'interno, altrimenti sarebbe una cassa di risonanza Link al commento https://melius.club/topic/21997-previsione-resa-acustica-di-una-stanza/#findComment-1320804 Condividi su altri siti Altre opzioni di condivisione...
Paolotto Inviato 11 Ottobre 2024 Autore Condividi Inviato 11 Ottobre 2024 @davenrk @davenrk ecco cosa mi scrivono dal forum di trattamentoacustico.it: Il problema più evidente è l'altezza molto limitata; inoltre, il punto di ascolto si troverà circa a metà dell'altezza, il che comporta il massimo punto di cancellazione e rinforzo dei modi propri della sala. Le altre dimensioni sarebbero adeguate, ma la combinazione di una buona lunghezza e larghezza con un'altezza ridotta porta a una distribuzione modale sbilanciata e non ottimale. Un altro potenziale problema potrebbe essere la risonanza del vano con la scala a chiocciola. Sarebbe opportuno installare una porta o una chiusura. In sintesi, non è ottimale, ma ho visto situazioni molto peggiori. Link al commento https://melius.club/topic/21997-previsione-resa-acustica-di-una-stanza/#findComment-1320854 Condividi su altri siti Altre opzioni di condivisione...
Tronio Inviato 11 Ottobre 2024 Condividi Inviato 11 Ottobre 2024 31 minuti fa, Paolotto ha scritto: ho visto situazioni molto peggiori. Il problema non è tanto se sia peggiore o migliore di altre, ma quanto si possa o meno intervenire sulle cause delle anomalie: se ad esempio il problema deriva dal rapporto tra i lati e l'altezza e la soluzione consiste nel dividere in due l'ambiente per ricavarne uno più piccolo ma dalle proporzioni più adeguate, bisogna capire se per te sarebbe un'opzione praticabile. Stesso dicasi per la chiusura del vano scala. Link al commento https://melius.club/topic/21997-previsione-resa-acustica-di-una-stanza/#findComment-1320898 Condividi su altri siti Altre opzioni di condivisione...
davenrk Inviato 11 Ottobre 2024 Condividi Inviato 11 Ottobre 2024 1 ora fa, Paolotto ha scritto: Un altro potenziale problema potrebbe essere la risonanza del vano con la scala a chiocciola. Sarebbe opportuno installare una porta o una chiusura. appunto per l'altezza non è altissima ma può anche andare, a patto che tu non voglia insonorizzare e fare un controsoffitto... per il resto non mi sembra male come dimensioni Link al commento https://melius.club/topic/21997-previsione-resa-acustica-di-una-stanza/#findComment-1320946 Condividi su altri siti Altre opzioni di condivisione...
leosam Inviato 11 Ottobre 2024 Condividi Inviato 11 Ottobre 2024 @Paolotto Ciao Se non hai problemi farei un divisore come nella foto,cosi accorceresti la stanza e non avresti piu' il problema del vano scale che farebbe piu' danni del soffitto di due metri e mezzo. Link al commento https://melius.club/topic/21997-previsione-resa-acustica-di-una-stanza/#findComment-1320961 Condividi su altri siti Altre opzioni di condivisione...
AlbertoPN Inviato 11 Ottobre 2024 Condividi Inviato 11 Ottobre 2024 7 ore fa, Paolotto ha scritto: a vostra esperienza è possibile prevedere la risposta acustica di un locale senza averlo provato prima Si che si può, oggi come oggi ci sono modelli a stati finiti o infiniti, ma servono tutti i parametri dell'ambiente comprese le misure, posizione porte/finestre, tipologia di materiale costruttivo, etc etc. E sono cose che fa un professionista del settore. Con quelli trovi tutte "le magagne" di una stanza e capisci come e dove intervenire (perché non la vuoi trasformare in una camera anecoica, ma neppure un vuoi un tempo di riverbero da auditorium) per renderla la tua stanza di ascolto. E sei al primo step. Poi dipende da dove e come posizioni l'impianto (i trasduttori soprattutto) e quindi come "ecciti" la stanza con l'energia che produci e quindi adatti le indicazioni del primo step a queste nuove esigenze e fai una media. Ti troverai a dover scegliere fra praticità, risultato e costo (più vuoi qualcosa di "fino" e più devi essere disposto a spendere) in modo da capire poi quanto intervenire in maniera "passiva" (meccanica, con materiali vari posizionati in modo opportuno) ed "attiva" (elettronica, con i diversi sistemi di correzione acustica oggi presenti sul mercato), cosa che quindi andrà (o andrebbe) a pilotare anche la scelta delle elettroniche dell'impianto per poter fare fronte a questa ultima esigenza. Se poi dismetto i panni dell'ascendente vergine (puntiglioso e rompipalle ) ti direi che con REW, come ti hanno suggerito, puoi già farti un'idea di massima ma soprattutto bisogna capire cosa ti aspetti come risultato finale e "come" vuoi ascoltare la tua musica. Potresti scoprire che comunque in quel determinato ambiente avresti tali e tanti compromessi che un approccio meno rigoroso pagherebbe lo stesso, o magari ti prendi un bel paio di cuffie . Si scherza un pò, che la vita è già abbastanza amara di suo dai. Link al commento https://melius.club/topic/21997-previsione-resa-acustica-di-una-stanza/#findComment-1321030 Condividi su altri siti Altre opzioni di condivisione...
Paolotto Inviato 11 Ottobre 2024 Autore Condividi Inviato 11 Ottobre 2024 la porta si potrebbe mettere, una parete divisoria snaturerebbe in modo irreversibile quello che è un bell'ambiente multifunzionale.... Link al commento https://melius.club/topic/21997-previsione-resa-acustica-di-una-stanza/#findComment-1321049 Condividi su altri siti Altre opzioni di condivisione...
Paolotto Inviato 11 Ottobre 2024 Autore Condividi Inviato 11 Ottobre 2024 18 minuti fa, AlbertoPN ha scritto: Si che si può, oggi come oggi ci sono modelli a stati finiti o infiniti, ma servono tutti i parametri dell'ambiente comprese le misure, posizione porte/finestre, tipologia di materiale costruttivo, etc etc. E sono cose che fa un professionista del settore. Con quelli trovi tutte "le magagne" di una stanza e capisci come e dove intervenire (perché non la vuoi trasformare in una camera anecoica, ma neppure un vuoi un tempo di riverbero da auditorium) per renderla la tua stanza di ascolto. E sei al primo step. Poi dipende da dove e come posizioni l'impianto (i trasduttori soprattutto) e quindi come "ecciti" la stanza con l'energia che produci e quindi adatti le indicazioni del primo step a queste nuove esigenze e fai una media. Ti troverai a dover scegliere fra praticità, risultato e costo (più vuoi qualcosa di "fino" e più devi essere disposto a spendere) in modo da capire poi quanto intervenire in maniera "passiva" (meccanica, con materiali vari posizionati in modo opportuno) ed "attiva" (elettronica, con i diversi sistemi di correzione acustica oggi presenti sul mercato), cosa che quindi andrà (o andrebbe) a pilotare anche la scelta delle elettroniche dell'impianto per poter fare fronte a questa ultima esigenza. Se poi dismetto i panni dell'ascendente vergine (puntiglioso e rompipalle ) ti direi che con REW, come ti hanno suggerito, puoi già farti un'idea di massima ma soprattutto bisogna capire cosa ti aspetti come risultato finale e "come" vuoi ascoltare la tua musica. Potresti scoprire che comunque in quel determinato ambiente avresti tali e tanti compromessi che un approccio meno rigoroso pagherebbe lo stesso, o magari ti prendi un bel paio di cuffie . Si scherza un pò, che la vita è già abbastanza amara di suo dai. No, correzioni elettroniche vorrei evitarle se possibile, quell'ambiente "deve"diventare almeno decente perchè ormai la decisione è stata presa e se non funziona mi devo tagliare le palle... Link al commento https://melius.club/topic/21997-previsione-resa-acustica-di-una-stanza/#findComment-1321058 Condividi su altri siti Altre opzioni di condivisione...
AlbertoPN Inviato 11 Ottobre 2024 Condividi Inviato 11 Ottobre 2024 2 minuti fa, Paolotto ha scritto: e se non funziona mi devo tagliare le palle... Link al commento https://melius.club/topic/21997-previsione-resa-acustica-di-una-stanza/#findComment-1321062 Condividi su altri siti Altre opzioni di condivisione...
Dubleu Inviato 11 Ottobre 2024 Condividi Inviato 11 Ottobre 2024 36mq e ti preoccupi così tanto? Installa l'impianto, arredalo il giusto e poi ti organizzi. 1 Link al commento https://melius.club/topic/21997-previsione-resa-acustica-di-una-stanza/#findComment-1321064 Condividi su altri siti Altre opzioni di condivisione...
Tronio Inviato 11 Ottobre 2024 Condividi Inviato 11 Ottobre 2024 12 minuti fa, Paolotto ha scritto: una parete divisoria snaturerebbe in modo irreversibile quello che è un bell'ambiente multifunzionale... Purtroppo per eliminare l'inevitabile effetto rimbombo del vano scale qualcosa devi fare, ma così come per il rapporto infelice tra le dimensioni non è detto che sia necessario chiudere fisicamente l'ambiente: senza dover ricorrere alle correzioni elettroniche (e qui mi trovi pienamente d'accordo) puoi mettere sulle pareti del vano e magari ai lati della soglia dei pannelli o dei trap che intercettino le onde sonore evitando o almeno minimizzando le risonanze, così come puoi usarli nella stanza per compensare quegli effetti indesiderati che verificherai però sul campo, e non con formulette o tabelle. Ascolta @Dubleu che qualcosina ne sa. Link al commento https://melius.club/topic/21997-previsione-resa-acustica-di-una-stanza/#findComment-1321070 Condividi su altri siti Altre opzioni di condivisione...
Paolotto Inviato 11 Ottobre 2024 Autore Condividi Inviato 11 Ottobre 2024 6 minuti fa, Dubleu ha scritto: 36mq e ti preoccupi così tanto? Installa l'impianto, arredalo il giusto e poi ti organizzi. be si, sono un pochettino ansioso perchè questa rappresenta in un certo senso l'ultima opportunità, credo che questa sarà la penultima dimora e ci tenevo a trovare un posto accogliente dove poter esercitare il mio hobby preferito, per la prima volta nella mia vita.... Link al commento https://melius.club/topic/21997-previsione-resa-acustica-di-una-stanza/#findComment-1321080 Condividi su altri siti Altre opzioni di condivisione...
Paolotto Inviato 11 Ottobre 2024 Autore Condividi Inviato 11 Ottobre 2024 10 minuti fa, Tronio ha scritto: Purtroppo per eliminare l'inevitabile effetto rimbombo del vano scale qualcosa devi fare, ma così come per il rapporto infelice tra le dimensioni non è detto che sia necessario chiudere fisicamente l'ambiente: senza dover ricorrere alle correzioni elettroniche (e qui mi trovi pienamente d'accordo) puoi mettere sulle pareti del vano e magari ai lati della soglia dei pannelli o dei trap che intercettino le onde sonore evitando o almeno minimizzando le risonanze, così come puoi usarli nella stanza per compensare quegli effetti indesiderati che verificherai però sul campo, e non con formulette o tabelle. Ascolta @Dubleu che qualcosina ne sa. Lo ascolto volentieri, anzi, se volesse darmi una mano ne sarei felice, magari ci scappa anche una visita con ascolto e cena a menù ligure a cura di mia moglie Link al commento https://melius.club/topic/21997-previsione-resa-acustica-di-una-stanza/#findComment-1321083 Condividi su altri siti Altre opzioni di condivisione...
Paolotto Inviato 11 Ottobre 2024 Autore Condividi Inviato 11 Ottobre 2024 Link al commento https://melius.club/topic/21997-previsione-resa-acustica-di-una-stanza/#findComment-1321087 Condividi su altri siti Altre opzioni di condivisione...
Messaggi raccomandati
Crea un account o accedi per lasciare un commento
Devi essere un membro per lasciare un commento
Crea un account
Iscriviti per un nuovo account nella nostra community. È facile!
Registra un nuovo accountAccedi
Sei già registrato? Accedi qui.
Accedi Ora