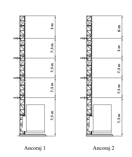
Martin Inviato 29 Luglio 2025 Condividi Inviato 29 Luglio 2025 1 ora fa, regioweb ha scritto: il montacarichi in questione non è del modello che qualcuno ha indicato ma un modello con portata ben superiore che comunque, in condizione di esercizio con carico significativo (3 persone + 2/3 rotoli di guaina da 40/50 kg l'uno), una volta raggiunto il braccio della leva limite - a causa del dado difettoso, o più probabilmente mancante, ha fatto patatrac!! Anche per il modello da te indicato è ammesso il funzionamento con colonna libera della lunghezza massima di 3 o 6 metri (2 o 4 sezioni) a seconda della distanza dei due ultimi ancoraggi. (il tratto libero ammesso per tratto unico di colonna direttamente sul basamento fissato a terra è di ben 11 metri) Per quanto si possa vedere da due foto sgranate, anche secondo me il maggior indiziato è la giunzione della colonna. 1 Link al commento https://melius.club/topic/25936-tre-operai-morti-a-napoli/page/12/#findComment-1554160 Condividi su altri siti Altre opzioni di condivisione...
permar Inviato 29 Luglio 2025 Condividi Inviato 29 Luglio 2025 @andpi65 sembra abbastanza palese, come scritto da molti, che tutto sia partito dalla mancanza del dado nel giunto della struttura, ma a incidere anche il tubo di ancoraggio a muro sovrastanta che e' vecchio e si e' spezzato nella torzione mentre il morsetto del tubo inferiore che non era stretto bene ha ruotato Link al commento https://melius.club/topic/25936-tre-operai-morti-a-napoli/page/12/#findComment-1554168 Condividi su altri siti Altre opzioni di condivisione...
analogico_09 Inviato 29 Luglio 2025 Condividi Inviato 29 Luglio 2025 Evvabene, ci si potrà anche improvvisare ingegneri e tecnici ma senza poter adeguatamente "vivisezionare" l'oggetto di morte sarebbe meglio esprimere dispiacere e cordoglio per le ennesime vittime sul lavoro che funestano questa nazione di espertoni, indignandosi per le oramai conclamate e mille volte appurate disattenzioni criminali degli impfrenditori che badano esclusivamente al profitto e muoia pure per che muoia sacrificato alla barbarie. Se succedono queste cose è perchè c'è il trabicco mal funzionante, non manutenuto, ispezionato a dovere, poi la c'è pure l'imprevisto, la causalità, la "sfiga", ma in un paese civile ad ampio raggio d'azione di queste ne potranno capiare un paio all'anno.., non tutti i giorni o quasi. Il vizio c'è, a monte e ed è difussissimo. Quando poi veniamo a sapere che c'è pure un tristo trascorso, con le seguenti aberranti modalità: 3 ore fa, appecundria ha scritto: Acquisite le sentenze relative all’imprenditore. Nell’ambito delle indagini sulla tragedia, la procura di Napoli ha acquisito la sentenza di condanna in primo grado e anche l’assoluzione della Corte di Appello che riguardano l’imprenditore per il quale le tre vittime stavano prestando servizio. Negli atti dell’indagine sull’incidente avvenuto nel 2015 in cui un suo ex operaio è rimasto gravemente ferito, tant’è che da allora è su una sedia a rotelle, figura anche un video in cui uno dei dipendenti dell’epoca viene ripreso mentre, dopo il grave incidente, sistemava le sponde di protezione al montacarichi dal quale l’operaio Giuseppe Iaquinangelo era appena caduto. ... lasciamo che siano gli esperti addetti ai lavori a verificare e a decidere se si si trattato di un cedimendo di un bullone, di un braccio, di altro elemento dell'impalcatura il cui cedimento non è avveuto per caso. Si troveranno i colpevoli, verranno condannati si teme al solito non adeguatamente, forse risarcite le famiglie delle vittime, probabilmente alle calende greche e con una elemosina in rapporto alla tragedia, e nel bel paese tutto seguitera ad essere come prima. Seguiteranno ad esserci trascuratezze, incoscinze più o meno criminali, cadranno altri lavoratori innocenti, spesso giovani capofamiglia, si seguoiteranno a fare scommesse su come sia potuto accadere il patatrack... La più tragica, confortante ed orrenda verità risulta essere questa. RIPosino in pace, tutti coloro i quali hanno pagato con la propria vita il prezzo dell'ignavia "padronale", della loro necessità di dover lavorare come vuole quella che è diventata quasi la regola - o questo o ti attacchi - e dei "governi" soprattutto dei governi sgovernati. 2 Link al commento https://melius.club/topic/25936-tre-operai-morti-a-napoli/page/12/#findComment-1554170 Condividi su altri siti Altre opzioni di condivisione...
Martin Inviato 29 Luglio 2025 Condividi Inviato 29 Luglio 2025 Ed è anche bene ricordare che di vittime del lavoro ce ne sono più di 3 al giorno anche se, accadendo per eventi diversi distanti tra loro, non hanno lo stesso battage mediatico, Link al commento https://melius.club/topic/25936-tre-operai-morti-a-napoli/page/12/#findComment-1554174 Condividi su altri siti Altre opzioni di condivisione...
permar Inviato 29 Luglio 2025 Condividi Inviato 29 Luglio 2025 Si lavora per poter vivere, purtroppo morirci e' la cosa peggiore che puo' capitare. L'edilizia e' uno dei settori maggiormente a rischio e nonostante le protezioni e disposizioni che ci sono, capita sempre l'incidente. In 40 anni di attivita' ne ho visti diversi e alcuni veramente imprevedibili Link al commento https://melius.club/topic/25936-tre-operai-morti-a-napoli/page/12/#findComment-1554184 Condividi su altri siti Altre opzioni di condivisione...
andpi65 Inviato 29 Luglio 2025 Condividi Inviato 29 Luglio 2025 1 ora fa, analogico_09 ha scritto: Se succedono queste cose è perchè c'è il trabicco mal funzionante, non manutenuto, ispezionato a dovere, poi la c'è pure l'imprevisto, la causalità, la "sfiga" Non mi sembra questo il caso Peppe! In questo caso direi che non serve essere "espertoni" per vedere e dire che quel montacarichi è stato montato a cazzum. Se è corretto il modello identificato da @regioweb quel montacarichi ha una portata di 800/ 1000kg e 3 tre persone più metti un 150/200 kg di materiale non ci arrivano a quel peso e non crolla tutto, sempre se è installato correttamente però. Link al commento https://melius.club/topic/25936-tre-operai-morti-a-napoli/page/12/#findComment-1554221 Condividi su altri siti Altre opzioni di condivisione...
analogico_09 Inviato 29 Luglio 2025 Condividi Inviato 29 Luglio 2025 1 ora fa, andpi65 ha scritto: Non mi sembra questo il caso Peppe! In questo caso direi che non serve essere "espertoni" per vedere e dire che quel montacarichi è stato montato a cazzum. D'accordo, ma montato male significa che che le cose non siano state fatte come si deve dove il rischio non è quello di incorrere in un danno riparabile bensì in una tragedia. Non saprei tuttavia dire chi potrebbe aver montato male la struttura e perchè. Link al commento https://melius.club/topic/25936-tre-operai-morti-a-napoli/page/12/#findComment-1554253 Condividi su altri siti Altre opzioni di condivisione...
analogico_09 Inviato 29 Luglio 2025 Condividi Inviato 29 Luglio 2025 Mi pare sia stato montato tutto quell'ambaradam per sistemate un'antenna condominiale. Ma per un lavoto del genere non sarebbero bastati un paio di "scalatori" assicurati a delle robuste corde a prova di caduta e di rottura per un lavoro più veloce, sicuro e forse più economico e in maggior sicurezza. Nel mio condominio si è provveduto così a sistemare i frontalini dei terrazzi stuccare qualche crepetta senza dover montare impalcature ingombranti e credo più costose. Ma non sono un esperto, sembra però che questa sia una buona soluzione mentre se ne vedono sempre più di "alpinisti" che scalano i palazzi (non di quelli che si arrampicano per altri ladreschi scopi... ) Link al commento https://melius.club/topic/25936-tre-operai-morti-a-napoli/page/12/#findComment-1554260 Condividi su altri siti Altre opzioni di condivisione...
Martin Inviato 29 Luglio 2025 Condividi Inviato 29 Luglio 2025 2 ore fa, analogico_09 ha scritto: Mi pare sia stato montato tutto quell'ambaradam per sistemate un'antenna condominiale. Leggevo che dovevano rifare l'impermeabilizzazione del terrazzo con guaina bituminosa. Link al commento https://melius.club/topic/25936-tre-operai-morti-a-napoli/page/12/#findComment-1554376 Condividi su altri siti Altre opzioni di condivisione...
analogico_09 Inviato 29 Luglio 2025 Condividi Inviato 29 Luglio 2025 3 minuti fa, Martin ha scritto: Leggevo che dovevano rifare l'impermeabilizzazione del terrazzo con guaina bituminosa. Oggi nel TG reginale Campania (a Roma dal Computer si vede solo il regionale della Lonbardia e della Campania.., niente Lazio... altro mistero tutto italiano, magari dell'etere RAI... mi è sembrato sentire che dovessero intervenire per un'antenna... magari serviva rimpere e riparare un po' di tetto. Verrà tutto ufficialmente chiarito, spero.., si apreirà un altro capitolo di italica suspense... Link al commento https://melius.club/topic/25936-tre-operai-morti-a-napoli/page/12/#findComment-1554384 Condividi su altri siti Altre opzioni di condivisione...
regioweb Inviato 29 Luglio 2025 Condividi Inviato 29 Luglio 2025 40 minuti fa, Martin ha scritto: Leggevo che dovevano rifare l'impermeabilizzazione del terrazzo con guaina bituminosa. vero, su un terrazzo piano ad oltre 20 metri di altezza completamente parapettato e quindi in relativa sicurezza.. in pratica l’unico rischio di caduta dall’alto per quei 3 poveri sventurati era proprio nel corso della salita (o della discesa…) e qui forse sta la ragione della mancanza dell’imbragatura di sicurezza, una volta arrivati in quota il rischio di caduta sarebbe stato praticamente nullo; a pensarci bene è un po’ come se avessero usato l’ascensore interno e si fosse rotta la fune… una vera disdetta Link al commento https://melius.club/topic/25936-tre-operai-morti-a-napoli/page/12/#findComment-1554402 Condividi su altri siti Altre opzioni di condivisione...
analogico_09 Inviato 29 Luglio 2025 Condividi Inviato 29 Luglio 2025 1 ora fa, regioweb ha scritto: forse sta la ragione della mancanza dell’imbragatura di sicurezza... a pensarci bene è un po’ come se avessero usato l’ascensore interno e si fosse rotta la fune… una vera disdetta Grave omissione la mancanza dell'imbragatura di sicurezza quindi una tragedia potenzialmente annunciata non già una fatalità o disdetta. Link al commento https://melius.club/topic/25936-tre-operai-morti-a-napoli/page/12/#findComment-1554459 Condividi su altri siti Altre opzioni di condivisione...
gbale Inviato 30 Luglio 2025 Condividi Inviato 30 Luglio 2025 La domanda è: dovevano mettere limbracatura e fissarla? Se la risposta è sì, si va avanti. Avrebbe limbracatura salvato la vita ai tre con quel tipo di rottura? Se la risposta è sì, inutile stare a scervellarsi sulla torre. Link al commento https://melius.club/topic/25936-tre-operai-morti-a-napoli/page/12/#findComment-1554498 Condividi su altri siti Altre opzioni di condivisione...
extermination Inviato 30 Luglio 2025 Condividi Inviato 30 Luglio 2025 Come si colloca questa specifica fattispecie in una ipotetica matrice dei rischi? Link al commento https://melius.club/topic/25936-tre-operai-morti-a-napoli/page/12/#findComment-1554504 Condividi su altri siti Altre opzioni di condivisione...
CarloCa Inviato 30 Luglio 2025 Condividi Inviato 30 Luglio 2025 13 ore fa, gbale ha scritto: Avrebbe limbracatura salvato la vita ai tre con quel tipo di rottura? È come la cintura di sicurezza la certezza non te la da però la probabilità è molto superiore. Link al commento https://melius.club/topic/25936-tre-operai-morti-a-napoli/page/12/#findComment-1554993 Condividi su altri siti Altre opzioni di condivisione...
gbale Inviato 31 Luglio 2025 Condividi Inviato 31 Luglio 2025 Sono due cose diverse. Se hai la cintura in auto, questa ti fissa al sedile per evitare la capocciata o lo sblzare fuori. Ti limita il danno. Limbracatura, come in una cordata alpina, se ce l'hai e se perdi la presa e vai giù, ti salva. Sempre. un po' come il paracadute ausiliario. Serve per salvarti, non per limitare il danno. Link al commento https://melius.club/topic/25936-tre-operai-morti-a-napoli/page/12/#findComment-1555095 Condividi su altri siti Altre opzioni di condivisione...
samana Inviato 31 Luglio 2025 Condividi Inviato 31 Luglio 2025 l'imbracatura, se indossata correttamente e senza difetti, salva la vita senza se e senza ma. E non e' vero che inficia i movimenti dell'operatore, avendo braccia, mani, gambe e piedi completamente liberi. Gli e' che e' vista come un fastidio inutile. Link al commento https://melius.club/topic/25936-tre-operai-morti-a-napoli/page/12/#findComment-1555102 Condividi su altri siti Altre opzioni di condivisione...
Martin Inviato 31 Luglio 2025 Condividi Inviato 31 Luglio 2025 Ora le imbracature sono realizzate con maggior attenzione al confort di chi le deve indossare, da questo pdv c'è stata una certa evoluzione in generale dei dpi e dell'abbigliamento antinfortunistico. Le prime erano in effetti scomode e limitanti, impratiche da indossare e regolare, il personale cercava di evitarle in favore di materiale vecchio non più a norma o adirittura di cinture ventrali leggerissime di tipo sportivo (da "climber") Per dire, la prima imbracatura "a norma" che mi hanno dato era sicuramente di pregevole fattura, tutte le parti a contatto doppiate in pelle nappa, fibbie in acciaio, numerosissime (troppe) regolazioni, l'attaco sternale avrebbe retto un elefante e così pure quello dorsale, ma era pesante e impratica. Link al commento https://melius.club/topic/25936-tre-operai-morti-a-napoli/page/12/#findComment-1555126 Condividi su altri siti Altre opzioni di condivisione...
Messaggi raccomandati