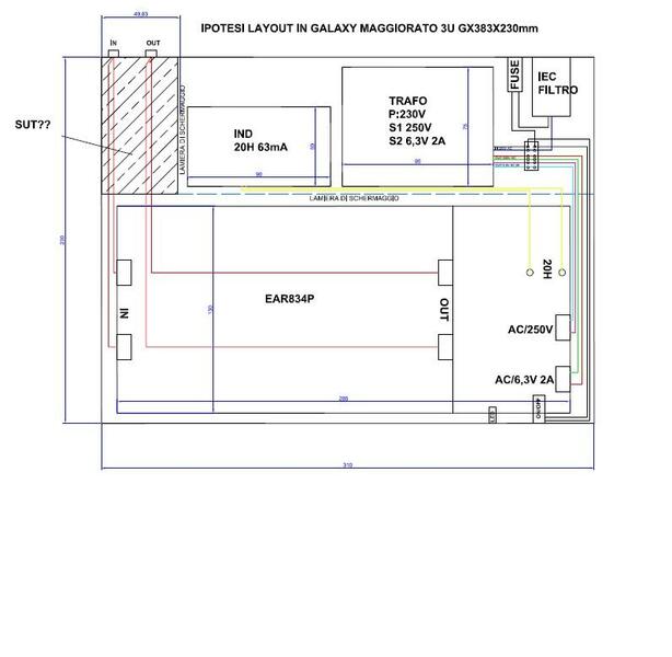
Marco Angelozzi Inviato 25 Maggio 2021 Condividi Inviato 25 Maggio 2021 Ho provato a fare un ipotesi di layout contenitore per il PCB Douk lasciato integro. Temo di dover usare un h120 per via dei componenti aggiuntivi al di sotto della piastra e la scelta è caduta sul galaxy maggiorato 3UGX383x230mm, accessoriato con piastra interna forata. Penserei di segregare la zona trasformatore/induttanza con lamierino di separazione. L'area tratteggiata (in alto a sx) sarebbe riservata ai SUT per MC..... eventualmente sarebbe consigliabile dotare l'apparato con ulteriori RCA anche per MM diretto tramite l'utilizzo di un commutatore sull'ingresso del pre? in tal caso che commutatore potrei utilizzare? Questa vuole essere solo un ipotesi di montaggio da principiante e ve la sottopongo per le vostre considerazioni. p.s. domani vado a prendere il trafo direttamente da Piemme Elektra modificato per me con schermo esterno. I ronzii si avvicinano ed ho timore di buttare tutto alle spine 😄 Link al commento https://melius.club/topic/825-ear-834p-clone-diy-un-pre-phono-a-valvole-in-kit-con-enormi-potenzialit%C3%A0/page/14/#findComment-96373 Condividi su altri siti Altre opzioni di condivisione...
viale249 Inviato 25 Maggio 2021 Condividi Inviato 25 Maggio 2021 @Marco Angelozzi se la larghezza del contenitore non è un problema passerei a 430 così da spostare il SUT a ridosso degli ingressi (verso il lato corto della scheda), il più lontano possibile dall'induttanza, vero generatore di rumore indotto... E probabilmente ti basta la profondità 170. Fosse per me ribalterei il layout: nei miei apparati la sezione di alimentazione è sempre a sinistra, gli ingressi a destra (come da tradizione jap 😉). Può sembrare una cosa da poco ma se hai vari apparati disposti uno sopra l'altro (non necessariamente impilati) ti ritrovi con i cavi di alimentazione da un lato (sx), ben distanti da quelli di segnale (a dx) e l'interazione debole ringrazia... Complimenti comunque per l'approccio ragionato al layout. 1 Link al commento https://melius.club/topic/825-ear-834p-clone-diy-un-pre-phono-a-valvole-in-kit-con-enormi-potenzialit%C3%A0/page/14/#findComment-97168 Condividi su altri siti Altre opzioni di condivisione...
Stel1963 Inviato 25 Maggio 2021 Autore Condividi Inviato 25 Maggio 2021 @viale249 @Marco Angelozzi Sposo totalmente l’approccio di Viale. Se guardi, non solo i giapponesi ma anche gli inglesi pongono l’alimentazione a sinistra e il segnale a destra. E…. I giradischi hanno il braccio a destra (Audio Innovations addirittura metteva la iec all’estremo sinistro in verticale e gli ingressi… sul bordo sinistro. Piu lontano possibile. Mai sentito un minimo ronzio o hum fda un ai. Silenziosi che non sai nemmeno se sono accesi o spenti!). Dunque se metti alimentazione a destra, devi far incrociare i poveri cavi che portano la frazione di millivoltbdrlla testina con tutti i cavi della corrente!😱😱😱😱😱🥶🥶🥶🥶🥶🥶☠️☠️☠️☠️☠️☠️😂😂😂😂 Secondo (per me) errore di layout… vediamo se ci arrivi per ragionamento. Quale è il segnale più delicato che hai in quell’apparecchio? Quello che deve avere la corsa più corta ? E quale è il cavo meno sensibile in assoluto ai disturbi? Ultimamente si vedono tantissimi prodotti che non tengono conto di questo ragionamento. E hanno problemi. Link al commento https://melius.club/topic/825-ear-834p-clone-diy-un-pre-phono-a-valvole-in-kit-con-enormi-potenzialit%C3%A0/page/14/#findComment-97182 Condividi su altri siti Altre opzioni di condivisione...
Marco Angelozzi Inviato 25 Maggio 2021 Condividi Inviato 25 Maggio 2021 @viale249 grazie per i suggerimenti. Proverò anche il ribaltamento ma devo trovare un contenitore 430 🤔🤔. la questione contenitore non è affatto da sottovalutare, secondo me va studiata bene per questo faccio dei disegni. Link al commento https://melius.club/topic/825-ear-834p-clone-diy-un-pre-phono-a-valvole-in-kit-con-enormi-potenzialit%C3%A0/page/14/#findComment-97184 Condividi su altri siti Altre opzioni di condivisione...
Marco Angelozzi Inviato 25 Maggio 2021 Condividi Inviato 25 Maggio 2021 @Stel1963 senza dubbio l’ingresso della testina è quello più problematico. Ma nel mio layout era comunque all’opposto dell’alimentazione. ribalto mi avete convinto 😂😂😂 Link al commento https://melius.club/topic/825-ear-834p-clone-diy-un-pre-phono-a-valvole-in-kit-con-enormi-potenzialit%C3%A0/page/14/#findComment-97187 Condividi su altri siti Altre opzioni di condivisione...
Stel1963 Inviato 25 Maggio 2021 Autore Condividi Inviato 25 Maggio 2021 @Marco Angelozzi complimenti per i disegni. Se avessi la tua cura non dovrei rifare i miei accrocchi 2 o 3 volte! Basta ragionare su un disegno per chiarirsi le idee 1 Link al commento https://melius.club/topic/825-ear-834p-clone-diy-un-pre-phono-a-valvole-in-kit-con-enormi-potenzialit%C3%A0/page/14/#findComment-97189 Condividi su altri siti Altre opzioni di condivisione...
Marco Angelozzi Inviato 25 Maggio 2021 Condividi Inviato 25 Maggio 2021 @Stel1963 in una materia che conosco appena se non disegno non so dove finisco, ma Se devo fare uno strumento musicale posso andare d’intuito 😉 Link al commento https://melius.club/topic/825-ear-834p-clone-diy-un-pre-phono-a-valvole-in-kit-con-enormi-potenzialit%C3%A0/page/14/#findComment-97193 Condividi su altri siti Altre opzioni di condivisione...
Stel1963 Inviato 25 Maggio 2021 Autore Condividi Inviato 25 Maggio 2021 @Marco Angelozzi questa non è affatto una regola (come invece sarebbe bene fosse quella sopra) ma un suggerimento. Visto che non hai trafo a vista che starebbero bene davanti… perché metterli dietro e non davanti? Il cavo della corrente non da problemi e non soffre i disturbi. Lo fai correre da dietro a davanti, che tanto ci metti un interruttore davanti quindi la 220 la porti li comunque. E metti il trafo sul lato sinistro davanti. Inoltre … con un’induttanza accanto o alla scheda phono nessun lamierino ti salverebbe da unnronzio stratosferico. A Link al commento https://melius.club/topic/825-ear-834p-clone-diy-un-pre-phono-a-valvole-in-kit-con-enormi-potenzialit%C3%A0/page/14/#findComment-97254 Condividi su altri siti Altre opzioni di condivisione...
Marco Angelozzi Inviato 25 Maggio 2021 Condividi Inviato 25 Maggio 2021 @Stel1963 🤔🤔🤔 ci avevo pensato anche a mettere il trasformatore davanti. Ma quest’induttanza benedetta dove diavolo la devo mettere?😂😂😂 Link al commento https://melius.club/topic/825-ear-834p-clone-diy-un-pre-phono-a-valvole-in-kit-con-enormi-potenzialit%C3%A0/page/14/#findComment-97268 Condividi su altri siti Altre opzioni di condivisione...
Stel1963 Inviato 25 Maggio 2021 Autore Condividi Inviato 25 Maggio 2021 dicevo… lascia il posto all’induttanza. Ma aspetta a comprarla e a montarla. Lascia piuttosto la resistenza un po piu alta e tanto è facilissimo dissaldarlanda sopra. L’induttanza è un vero generatore di ronzio. Inseriamo un minimo di variabili. Se non ronza, poi si può inserire l’induttanza. Comunque vabposizionata accanto al trafo orientata piatta o verso il basso, o almeno orientata diverso dal trafo. Sicuro ci sono regole di calcolo e diagrammi polari, ma non me li ricordo proprio. Quindi. Monti tutto meno quella, poi correggi i loop di massa (che farai.. tranquillo). Rendi il pre “tombale”. E poi inserisci l’induttanza senza fissarla e se porta ronzio o hum (100hz o 50hz) giochi con il posizionamento e l’orientamento. È un pre phono a valvole ad alto guadagno. Hai sufficiente guadagno da usare una mc moderna a media uscita. Ma …dato che giadagna TANTO, qualunquenorigine di ronzio deve essere lontana da V1 e dal cavetto di ingresso. 1 Link al commento https://melius.club/topic/825-ear-834p-clone-diy-un-pre-phono-a-valvole-in-kit-con-enormi-potenzialit%C3%A0/page/14/#findComment-97296 Condividi su altri siti Altre opzioni di condivisione...
Questo è un messaggio popolare. pro61 Inviato 25 Maggio 2021 Questo è un messaggio popolare. Condividi Inviato 25 Maggio 2021 Anche a me piace fare i layout al cad prima di montare. Anche le schede millefori con i compoenti sopra, così faccio una specie di sbrogliato, che con le connessioni peer to peer e essenziale. 3 Link al commento https://melius.club/topic/825-ear-834p-clone-diy-un-pre-phono-a-valvole-in-kit-con-enormi-potenzialit%C3%A0/page/14/#findComment-97355 Condividi su altri siti Altre opzioni di condivisione...
Stel1963 Inviato 25 Maggio 2021 Autore Condividi Inviato 25 Maggio 2021 @Marco Angelozzi ci sono comunque grosse differenze soniche tra la versiine con e la versione senza. Su lencoheaven Thorsten e Joe consigliano con, ma Rebecca ha progettato la psu dedicata a questo pre senza. E sta avendo ottime recensioni sulle rivste. A livellondi suono, senza e piu ritondo, morbido e musicale, e ha maggior profondità e sostanza della scena. Con è più veloce, nervoso, definito. All’inizio leggermente legnoso ma dopo poche facciate si fluidifica. I bassi sono più secchi e veloci, pur rimanendo ugualmente profondi (impressionante l’uso diretto con potenziometro, che però va soltanto per impianti senza altre fonti) e perde quel tocco di “calore” da valvolare prendendo un suono molto moderno. La ecc82 Nos in v3 lo ammorbidisce un pelo, specialmente se philips o telefunken. La siemens non mi è piaciuta invece. Per sintetizzare: i vantaggi del montare dopo l’induttanza sono vari, tra i quali evitare appena montato un’ilteriore possibile fonte di ronzio, capire che differenza costituisce un’alimnetazione. Crcl da una semplice crcr (calcolatr che poi avete di nuovo una cella cr sulla linea di B+ per ogni stadio, e poter essere coscienti del suono e dunque decidere anche qui le nostre preferenze. Attenzione che il risultato finale è cumulativo. Quindi per esempio, suono con induttanza troppo definito, suono senza troppo morbido e rotondo Soluzione, scegliere per esempio il secondo e utilizzare valvole moderne magari russe + resistenza in ingresso a strato metallico, oppure al contrario utilizzare la induttanza e delle valvole nos in V1, V2, V3, magari mettendo un condensatore più fluido da 1uF. Insomma…. Il gioco comincia solo DOPO che lo abbiamo finito e abbiamo eliminato ronzii vari. 1 Link al commento https://melius.club/topic/825-ear-834p-clone-diy-un-pre-phono-a-valvole-in-kit-con-enormi-potenzialit%C3%A0/page/14/#findComment-97362 Condividi su altri siti Altre opzioni di condivisione...
Stel1963 Inviato 25 Maggio 2021 Autore Condividi Inviato 25 Maggio 2021 @pro61 spettacolo! Link al commento https://melius.club/topic/825-ear-834p-clone-diy-un-pre-phono-a-valvole-in-kit-con-enormi-potenzialit%C3%A0/page/14/#findComment-97363 Condividi su altri siti Altre opzioni di condivisione...
viale249 Inviato 25 Maggio 2021 Condividi Inviato 25 Maggio 2021 2 ore fa, Marco Angelozzi ha scritto: ma devo trovare un contenitore 430 Sempre da HIFI2000 puoi trovare la serie slim 3U nella profondità 170. Credo che alla fine monti gli stessi laterali in estruso della serie Galaxy. 1 Link al commento https://melius.club/topic/825-ear-834p-clone-diy-un-pre-phono-a-valvole-in-kit-con-enormi-potenzialit%C3%A0/page/14/#findComment-97374 Condividi su altri siti Altre opzioni di condivisione...
Marco Angelozzi Inviato 25 Maggio 2021 Condividi Inviato 25 Maggio 2021 @viale249 visto grazie 🙏 Link al commento https://melius.club/topic/825-ear-834p-clone-diy-un-pre-phono-a-valvole-in-kit-con-enormi-potenzialit%C3%A0/page/14/#findComment-97378 Condividi su altri siti Altre opzioni di condivisione...
Stel1963 Inviato 26 Maggio 2021 Autore Condividi Inviato 26 Maggio 2021 @Marco Angelozzi se però hai più profondità meglio. Hai più spazio per allontanare ilntrafo e l’induttanza. Link al commento https://melius.club/topic/825-ear-834p-clone-diy-un-pre-phono-a-valvole-in-kit-con-enormi-potenzialit%C3%A0/page/14/#findComment-97466 Condividi su altri siti Altre opzioni di condivisione...
Marco Angelozzi Inviato 27 Maggio 2021 Condividi Inviato 27 Maggio 2021 Buongiorno, esiste una procedura diciamo “di prima accensione”? Verifica delle tensioni ecc? Link al commento https://melius.club/topic/825-ear-834p-clone-diy-un-pre-phono-a-valvole-in-kit-con-enormi-potenzialit%C3%A0/page/14/#findComment-99041 Condividi su altri siti Altre opzioni di condivisione...
Stel1963 Inviato 27 Maggio 2021 Autore Condividi Inviato 27 Maggio 2021 @Marco Angelozzi sei già li? Complimenti!!!! Certo che esiste. 1:) controllo con tester delle masse e controllo visuale. Controllare che tutti i condensatori elettrolitici abbiano il segno - dal lato massa (per la 6,3 volt la massa non corrisponde alla massa generale, essendo sollevata di 30v). Controllo con tester che non vi siano contatti con la massa su entrambe le schede prima di collegarle una all’altra (ma anche dopo se son già collegate). 2) controllo scheda alimentazioni. Accendere e controllare i voltaggi in uscita. (Saranno decisamente più alti, 320-330v e 8-9 volt) STOP. ⚠️-PERICOLO !!!!!!! SPEGRNERE E LASCIAR SCARICARE I CONDENSATORI. PRIMA DI FARE COLLEGAMENTI CONTROLLARE CHE LA TRNSIONE ALL’Auscita 285v sia almeno sotto i 20-30 volt. 3) collegare la scheda pre e controllare la tensione sotto alimentazione nei punti di controllo segnati sulla scheda. Attenzione… le tensioninsaranno più alte. No problem! 4) attrndere che i cond sinscarichino r inserire le valvole. Poi dare corrente e controllare le tensioni sulla scheda. 6,3 v e 285 v nei punti di controllo (la 6,3 v si controlla dove sono segnati gli ingressi per il collegamento). ATTENZIONE-PERICOLO. anche in fase di test, montare almeno 1 fusibile sulla alternata di ingresso. NO COLLEGAMENTI SENZA FUSIBILI ATTRNZIONE PERICOLO. LA TERRA DEVE ESSERE COLLEGATA A TERRA, di solito non si collega al gnd della scheda ma bensì al contenitore. La terra della scheda di alimentazione è l’unica che vada a terra, e va in un punto del telaio differente e distante qualche cm da quella della terra della rete elettrica. Volendo si può inserire un semplice filtro con resistenza da 10w almeno e condesatore ceramico piccolino. Ma lo vediamo poi. Per prove su tavoletta di legno, collegare la terra della scheda di alimentazione allla terra della rete di casa. importante. TUTTI I CONNETTORI DEVONO ESSERE ISOLATI DAL CONTENITORE. INCLUSA LA TERRA DEL GIRADISCHI, CHE ANDRÀ A TERRA SULLA SCHEDA PRE nell’apposito connettore vicino al potenziometro Link al commento https://melius.club/topic/825-ear-834p-clone-diy-un-pre-phono-a-valvole-in-kit-con-enormi-potenzialit%C3%A0/page/14/#findComment-99334 Condividi su altri siti Altre opzioni di condivisione...
Messaggi raccomandati
Crea un account o accedi per lasciare un commento
Devi essere un membro per lasciare un commento
Crea un account
Iscriviti per un nuovo account nella nostra community. È facile!
Registra un nuovo accountAccedi
Sei già registrato? Accedi qui.
Accedi Ora